- €175.000
Panoramica
- Ville e Terreni
- 42 m²
- 1
- 1
- 1
- 2800 m²
Descrizione
Sanremo, alle spalle di Corso degli Inglesi: terreno con progetto approvato e fabbricato esistente
In vendita a Sanremo, alle spalle di Corso degli Inglesi, proprietà composta da fabbricato esistente di 42 mq e terreno di circa 2.800 mq, con progetto approvato di demolizione e ricostruzione (ai sensi art. 6 L.r. 49/2009) per la realizzazione di una villa con superficie totale di 100 mq, oltre box auto in aderenza.
Il lotto ha accesso carrabile preesistente e pergolato di vite lungo 40 mt. Presente anche la possibilità per una piscina e una vista mare; l’esposizione è indicata come molto soleggiata.
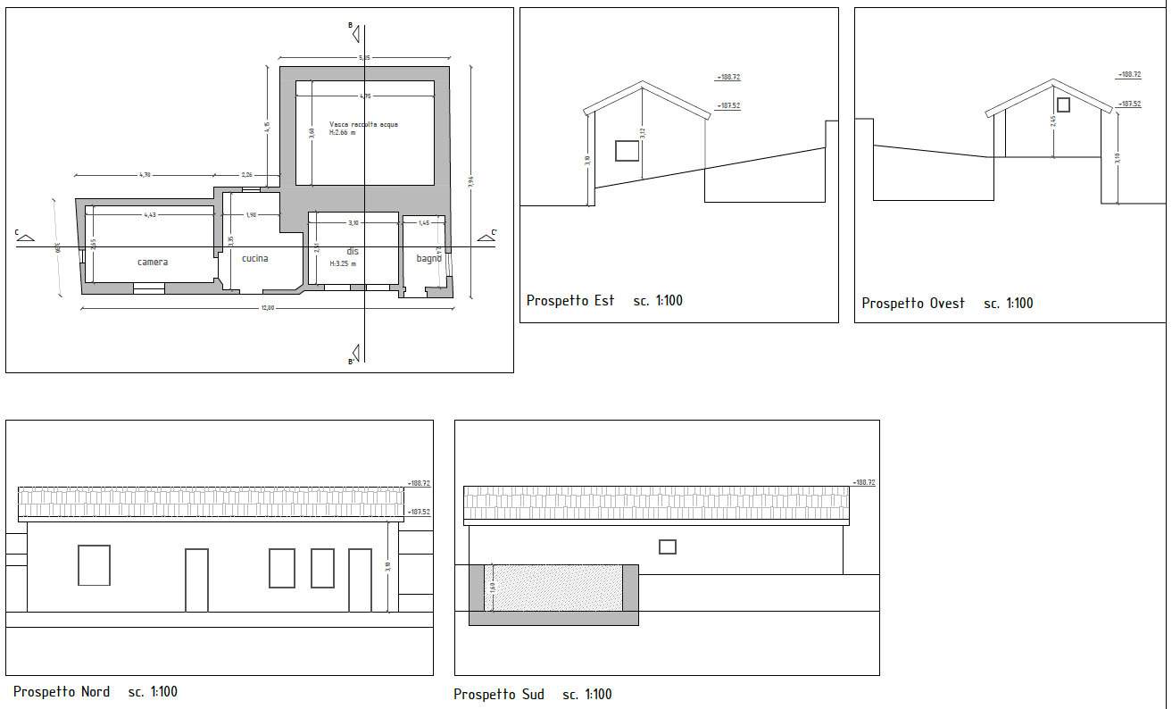
Fabbricato esistente (42 mq)
Composto da:
- disimpegno
- cucina
- camera
- bagno
Progetto approvato: demolizione e ricostruzione (villa 100 mq + box)
Il progetto prevede un immobile derivante dall’ampliamento dell’esistente: vengono mantenuti alcuni muri perimetrali, il resto viene demolito.
Distribuzione interna in progetto
- ingresso su zona giorno di 22,20 mq
- cucina di 23,40 mq
- 2 bagni (3,78 mq e 3,83 mq)
- cabina armadio di 6,80 mq
- 1 camera matrimoniale di 14,10 mq
- 1 camera di 9,05 mq
- corridoio lineare
Pertinenze e spazi esterni in progetto
- box auto comunicante in aderenza di 35,30 mq (indicato anche come 35 mq)
- spazio pergolato esterno
- ingresso con viale carrabile
- area di manovra con accesso al box
- area frontale al nuovo edificio con pavimentazione in deck in legno ricomposto e ampia aiuola
Terreno e dotazioni
Terreno di circa 2.800 mq (escluso indice), con:
- vigna
- ulivi
- 2 pozzi artesiani di sorgente
- deposito d’acqua
- sorgente acqua con concessione 40 anni
Riepilogo caratteristiche
- Camere da letto: 1 (esistente) / 2 (in progetto)
- Bagni: 1 (esistente) / 2 (in progetto)
- Superficie: 42 mq (esistente) + 100 mq (in progetto)
- Box auto: 35,30 mq (in progetto, in aderenza)
- Terreno: circa 2.800 mq
- Accesso: carrabile preesistente, pergolato di vite 40 mt
- Note: possibilità piscina, vista mare, molto soleggiata
Contatta per informazioni o per una visita.formazioni o per una visita.
Nelle foto rendering e planimetrie della casa in progetto.

